Description
Ref. 1840579 - Centre Ville
A 7min des plages de Juan les Pins
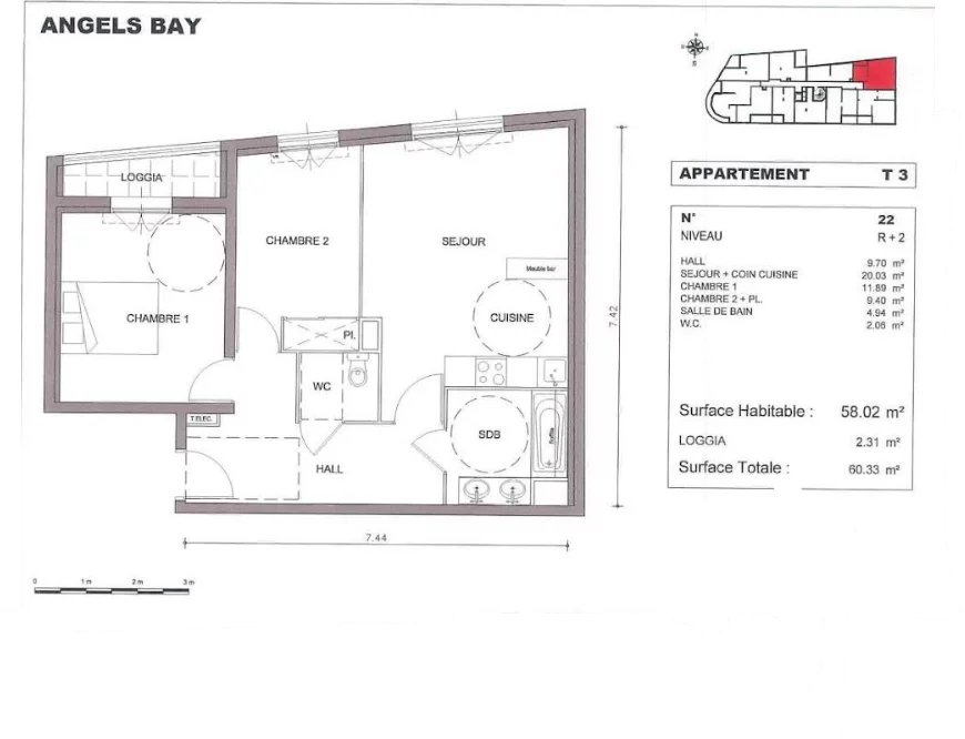
Dans un immeuble récent, au 2ème étage avec ascenseur, beau 3p de 58.02m² composé d'une entrée avec placard, une lumineuse pièce principale avec cuisine américaine aménagée et semi équipée (plaque 4 feux, frigo/congelateur, hotte), 2 chambres, salle de bains avec meuble double vasque, wc ind. Balcon de 2.31 m².
1 place de parking en sous sol,
Eau froide et eau chaude comprises dans les charges.
Résumé
- Pièces 3 pièces
- Surface 58 m²
- Chauffage Convecteur
- Etat Bon état
- Etage 2ème / 5 étages
- Disponibilité Libre
Surfaces
- 1 Parking
- 1 Balcon 2.31 m²
Prestations
- Double vitrage
- Stores
- Accès handicapé
- Ascenseur
- Interphone
Proximités
- Bus
- Centre ville
- Commerces
- Crèche
- École primaire
- Médecin
- Mer
- Supermarché
Efficacité énergétique
Informations légales
- Charges120 € / Mois
- Honoraires d'agence754,26 € TTC
- Dépôt de garantie862 €
- Charges de copropriété120 € / Mois
- Pas de procédure en cours
